Dodatne informacije
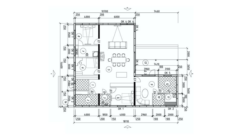
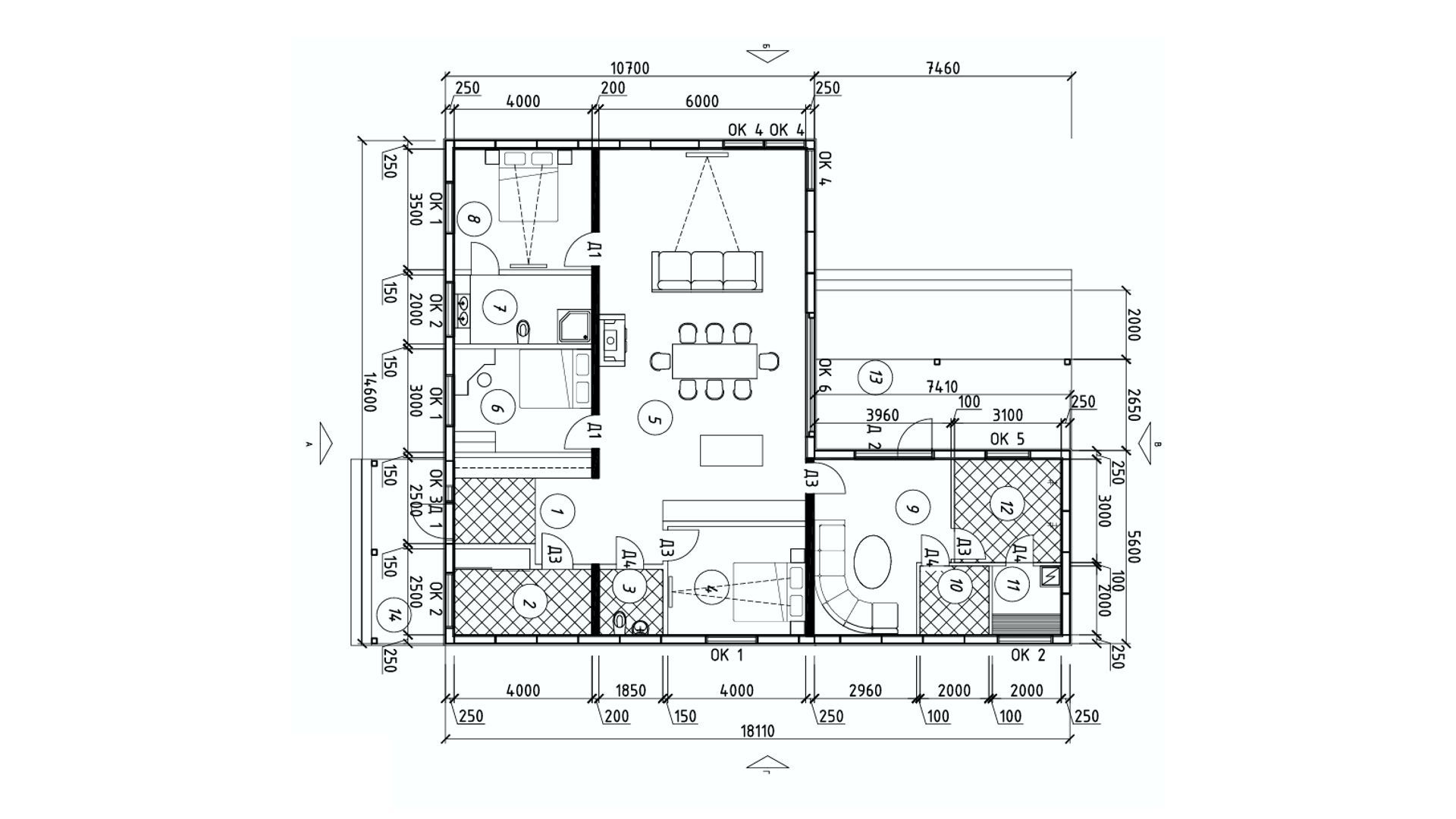
Prostorni raspored:
Dnevni boravak i blagovaonica: Veliki otvoreni prostor, savršen za obiteljska okupljanja i opuštanje.
Kuhinja: Funkcionalno povezana s dnevnim dijelom, omogućuje jednostavno kuhanje i uživanje u obrocima.
Spavaće sobe: Tri udobne spavaće sobe koje pružaju mir, privatnost i kvalitetan san.
Kupaonice: Dvije moderne kupaonice, idealne za veću obitelj i dodatnu praktičnost.
Spremište: Dodatni prostor za organizaciju doma.
Terasa: Prostrana terasa savršena za boravak na otvorenom i uživanje u prirodi.
Tehničke specifikacije
Ukupna površina: 198 m2 + 35 m2 terasa.
Moderan dizajn krova i fasade koji kući daje suvremen izgled
Prednosti montažne kuće Astra
✅ Brza izgradnja – montažna konstrukcija omogućuje brzu realizaciju doma
✅ Energetska učinkovitost – smanjeni troškovi grijanja i hlađenja
✅ Ekološka prihvatljivost – održivi materijali i manji ekološki otisak
✅ Idealna za obitelj – tri sobe i dvije kupaonice za maksimalnu udobnost
Izaberite montažnu kuću Astra
za moderan, prostran i funkcionalan dom koji pruža sve što je potrebno za kvalitetan obiteljski život.



































